When Timing Is Tight and Space Is Scarce, Storage Has to Work Smarter
How Premier’s real-time asset system saved a hospital rollout from going off the rails.
When departments grow, teams shift, or your office layout isn’t working anymore, reimagining your workspace shouldn’t mean upending your week.
Whether it’s a quick workstation shuffle or a full-scale remodel with new furniture, you need a crew that can work with any brand, read floorplans, handle systems furniture with care, and make the disruption disappear.
At Premier Office Movers, furniture installation and reconfiguration isn’t a side gig—it’s part of our core offering. We partner with facility leaders across Columbus to make their space work smarter, faster.
How Premier Office Movers made their moves seamless, stress-free, and successful.
"Andy G. and his team did a wonderful job assisting in the removal/reinstall of office furniture for our renovation project! Premier was always on time, efficient, professional, and very easy to work with. I definitely recommend!"
Kayci Z.
"Recently used Jonathan and Premier Office Movers for a large set of furniture moves that we did here at Linear 1 and I'm extremely happy to have worked with Jonathan. Punctual and professional and got it all done within a week."
Scott V.
"Premier Office Movers team worked with us on two major projects in Cincinnati and Detroit. Completed our office move, build out of large cubicle space, and purchasing of office furniture on time and on budget. Seamless execution and great professionalism."
Anthony Z.
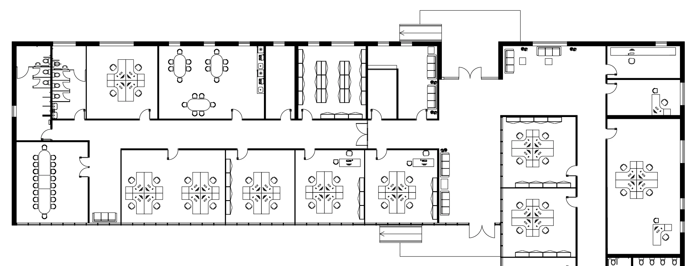
Your Floor Plan Isn’t Static.
Neither Are We.
Seamless Setup
Professional installation of cubicles, desks, and modular systems—new or used. Done right, with care.

Plan First. Move Second.
Every install starts with a walkthrough. We map the space, talk through your needs, and avoid surprises.

Precise, Scaled Drawings
We provide to-scale CAD layouts to visualize the space before a single bolt is tightened.

Low Disruption. High Impact.
work quietly and efficiently—even in live environments. Your team stays productive throughout.



"Jonathan worked with me on previous project in Dublin Ohio this project was a success, I was happy to bring him on to our two other office build-outs.
Premier Office Movers team worked with us on two major projects one in Cincinnati also in Detroit. Jonathan completed our office move project, build out of large cubicle space, purchasing of office furniture for our law firm on time and on budget and offered many solutions when there was some small hiccups that was out of our control.
His team completed the project seamlessly with great professionalism.
Completed the removal of our Cincinnati office that was two floors that was also seamlessly completed.
I highly recommend him for any projects that you are looking to do from mid-size to large highly recommend Jonathan at your consultant and his team at Premiere Office Movers LLC.
Planning a remodel? Reworking your layout? Ordering new desks? Call us before the first box hits the floor.
Whether it’s a one-workstation install or a full-floor buildout, we’ve helped clients like:

“It’s not just about putting furniture together—it’s about understanding the bigger picture of how the space works.”
Modular Furniture.
Maximum Confidence.
Every Time.
From Teknion to Herman Miller and everything in between, modular furniture systems require specialized knowledge—and we bring it. When you hire Premier Office Movers, you get:

Ready to get started? Contact us today to discuss your office moving needs.
How Premier’s real-time asset system saved a hospital rollout from going off the rails.
How proactive storage management prevented a costly mistake—and saved a rollout worth millions.
How Premier Office Movers relocated 300 employees—overnight—without missing a beat.